CHAMINÉ BALAY – 3BC587GN –
€615,90 €585,11
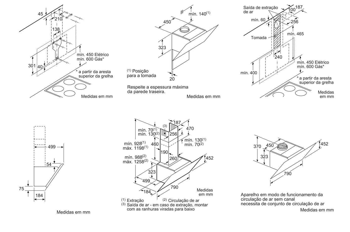
CLASSE B – LARGURA 80CM – CAP MÁXIMA EXTRAÇÃO 680 M3/H – 58dB – VIDRO PRETO
Em stock
Descrição
Classe de eficiência energética: B numa escala de classes de eficiência energética de A+++ até D
Touch Control sobre vidro
Iluminação LED
Interior blindado. Limpeza fácil e segura.
3 + 1 nível intensivo
Nível intensivo com retorno automático para nível inferior após 10 minutos.
Capacidade de extração de acordo com a norma DIN/EN 61591 em modo de saída de ar no nível normal máximo; 416 m3/h, nível intensivo 700 m3/h
Nível de ruído de acordo com as normas EN 60704-3 e EN 60704-2-13 em modo de saída de ar no nível normal máximo: 58 dB (A).
Aspiração perimetral
Filtro adicional na parte inferior para uma filtragem mais eficaz.
Sistema de fecho suave do painel.
Válvula anti-retorno incluída
Possibilidade de funcionamento em recirculação sem chaminé

